URBAN SPOON ONE BAILEY SQUERE

  DESIGN PROPOSAL

   어반 스푼 원베일리 스퀘어점 디자인 제안서 

· Category / Italian Restaurant

· Site / Banpo-dong, Seocho-gu, Seoul

· Area / 184㎡ / 56py


URBAN SPOON|One Bailey Square

DESIGN PROPOSAL

어반 스푼 원베일리 스퀘어점 디자인 제안서


· Category / Italian Restaurant

· Site / Banpo-dong, Seocho-gu, Seoul

· Area / 184㎡ / 56py


CONCEPT IMAGE


· “모던 캐주얼 이탈리안 브런치”: 깔끔하면서도 편한 분위기

· “채광보다는 조명으로 연출된 분위기”: 지하 공간임을 고려

· “포인트 컬러 + 뉴트럴 베이스”: 차분한 베이스에 노란 등 포인트 컬러가 살아 있음

· “디지털 주문 + 편한 휴식 공간”: 태블릿 주문·가족·모임 대응


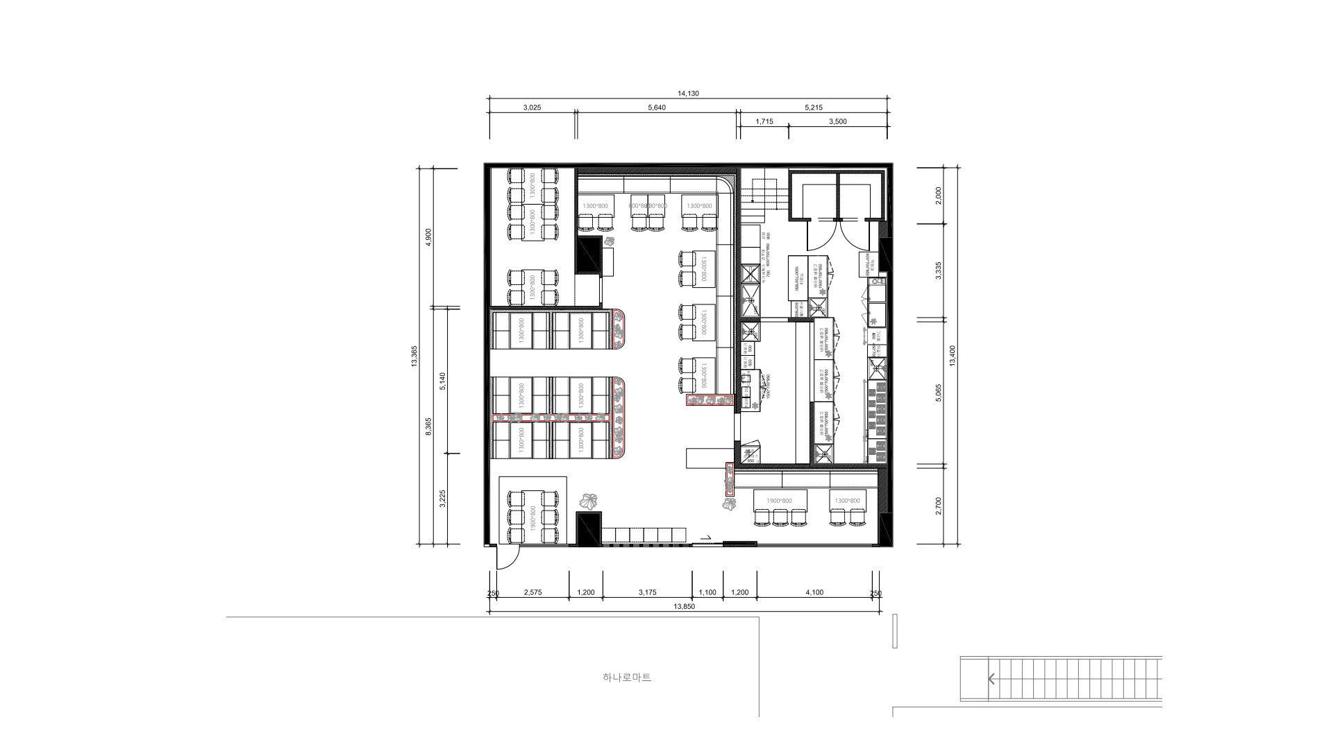
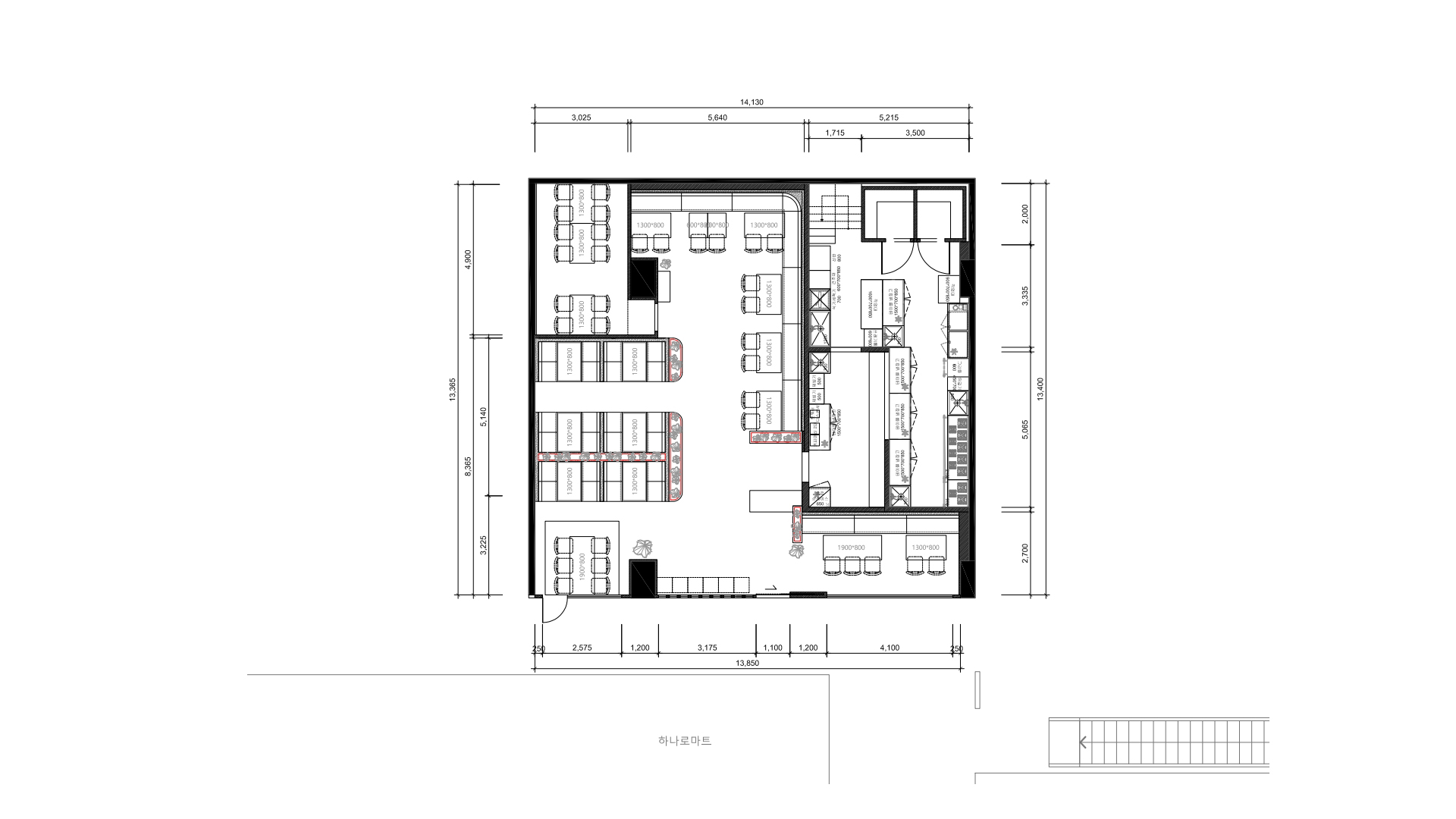
FLOOR PLAN


어반스푼 원베일리 스퀘어점은 브런치/이탈리안 레스토랑입니다.


위치 특성 상 주거 밀집 지역 및 유동인구가 많은 곳 이라는 점을 고려하여,

평면 계획 시 가족 외식, 친구 모임, 데이트 등 다양한 목적에 대응하도록

좌석 배치를 구성하였습니다.


PERSPECTIVE

(주) 스튜디오파브


T 02 353 6317

F 02 335 6318

E studiofab@naver.com

@designstudio_fab


4F, 53, Seongam-ro 15-gil, Mapo-gu, Seoul

서울특별시 마포구 성암로15길 53 (상암동) 4층