Soopsori
Design Proposal
숲소리 디자인 제안서
· Category / Showroom
· Site / Chunan-si, Chungcheongnam-do
· Area / 150㎡ / 45py
· Category / Furniture Showroom
· Site / Gangdong-gu, Seoul
· Area / 173㎡ / 52py
감각을 깨우는 공간
DESIGN CONCEPT KEYWORD
· 시각적 자극
다채로움(Vibrancy)
명료함(Clarity)
조화(Harmony)
동적요소(Dynamic Elements)
· 청각적 자극
부드러운 배경음악(Soft Music)
자연의 소리(Sound of Nature)
· 촉각적 자극
다양한 텍스쳐(Varied Textures)
자연 소재(Natural Materials)
인터렉티브 설치물(Interactive Installations )
· 후각적 자극
향기존(Scent Zones)
자연의 향(Natural Scents)
· 미각적 자극
맛있는 휴식(Tasty Breaks)
커피 향(Coffee Aroma)
· 종합적 자극
통합적경험(Intergrated Experience)
스토리텔링 (Storytelling)
· 시각적자극
다채로움 (Vibrancy)
명료함 (Clarity)
조화 (Harmony)
동적 요소 (Dynamic Elements)
· 청각적자극
부드러운 배경음악 (Soft Music)
자연의 소리 (Sound of Nature)
· 후각적자극
자연의향(Natural Scents)
· 미각적자극
맛있는휴식(Tasty Breaks)
커피향(Coffee Aroma)
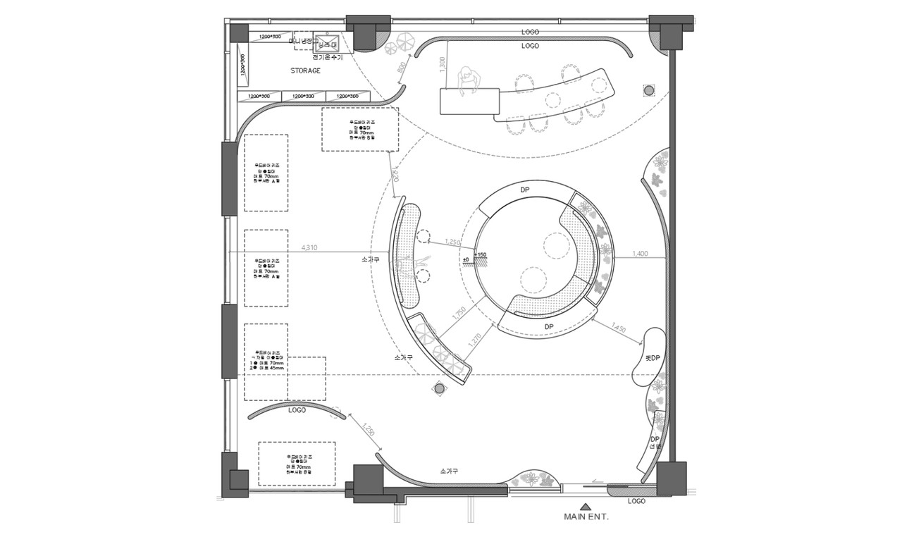
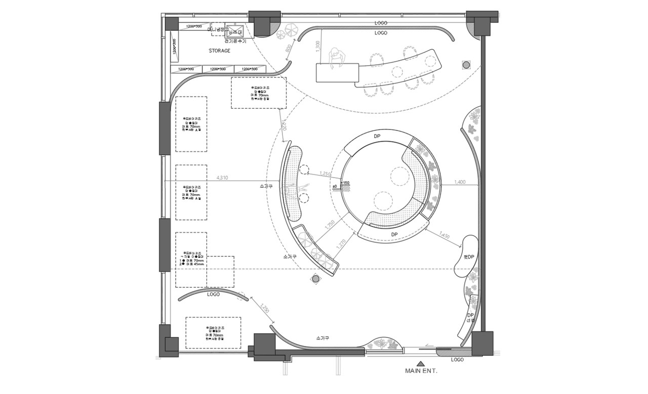
LAYOUT
PERSPECTIVE GALLERY
(주) 스튜디오파브
T 02 353 6317
F 02 335 6318
E studiofab@naver.com
@designstudio_fab
4F, 53, Seongam-ro 15-gil, Mapo-gu, Seoul
서울특별시 마포구 성암로15길 53 (상암동) 4층