AFTER PRAY

  DESIGN PROPOSAL

   애프터프레이 디자인제안서

· Category / Show Room

· Site / Seongdong-gu, Seoul

· Area / 34.5㎡ / 10py


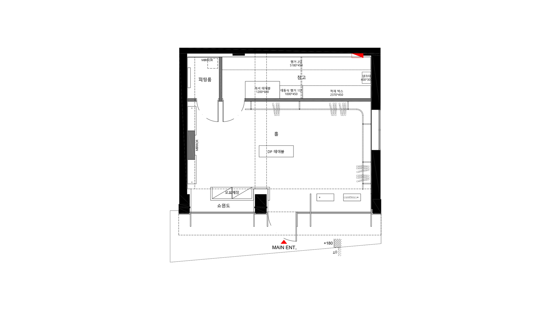
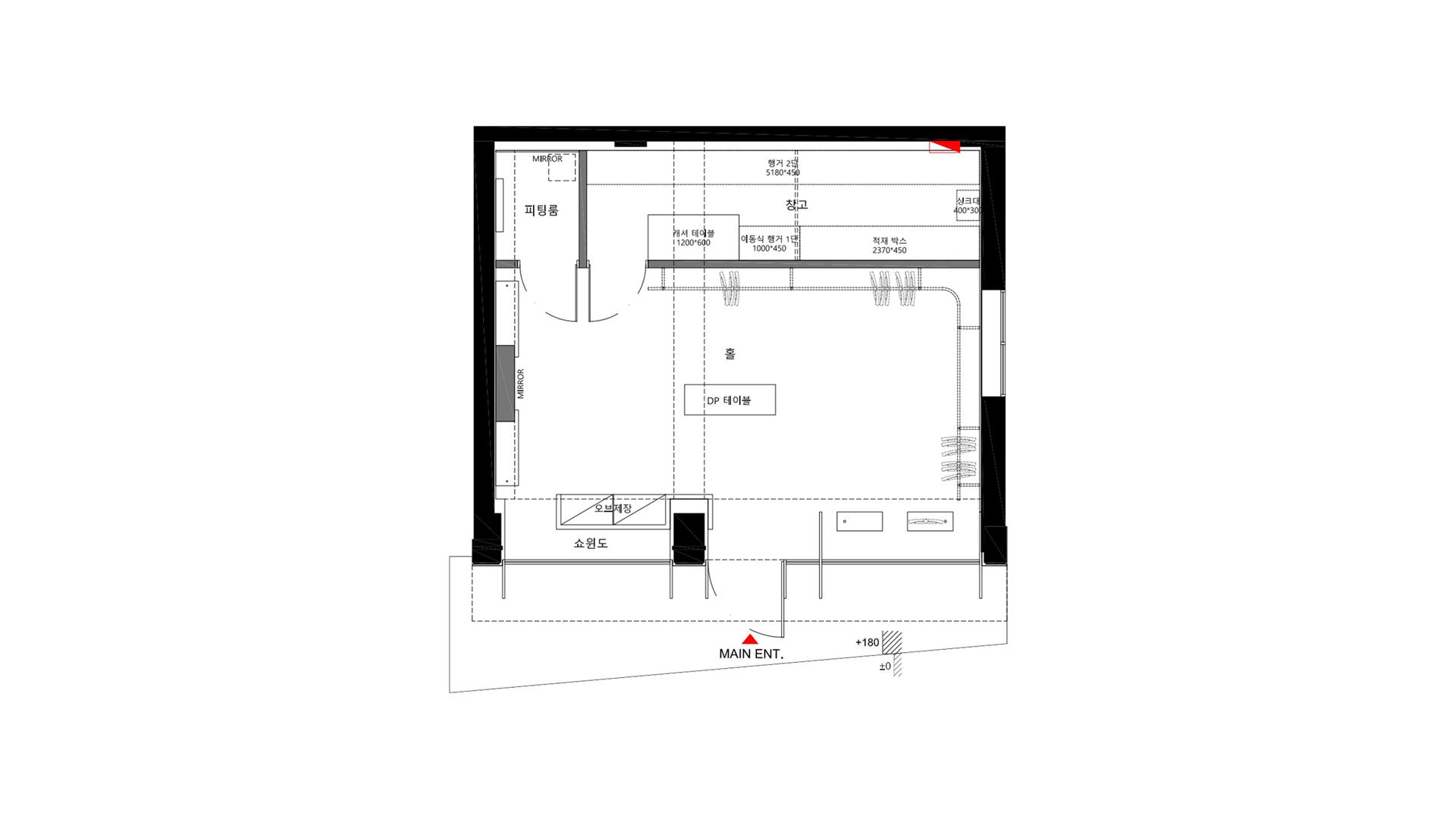
FLOOR PLAN


성수동에 위치한 패션 쇼룸 '애프터 프레이'. 입구에서 '홀'로 자연스럽게 이어져, 중앙의 DP 테이블과 양측 벽면의 진열·행거 구성이 시각적 집중도를 높이고 상품 접근성을 극대화 하였습니다.


피팅룸·수납·전시 영역을 효율적으로 배치하여, 고객 경험과 운영 편의성을 모두 고려한 실용적인 매장 구조를 계획하였습니다.


CONCEPT IMAGE


  • 미니멀 모노톤 기반의 정제된 공간
    전체적으로 화이트·그레이 톤을 중심으로 한 절제된 팔레트가 적용 되어, 브랜드의 깔끔하고 담백한 이미지 강조.

  • 따뜻한 우드 포인트와 금속 구조물의 대비
    우드 쇼케이스와 디스플레이 가구가 공간에 온기를 더하며, 금속 행거 시스템은 직선적이고 구조적인 분위기를 형성해 균형 있는 무드 완성.

  • 개방감과 투명성을 강화한 파사드 디자인
    전면 유리 입면을 통해 실내가 그대로 드러나며, 브랜드 아이덴티티와 상품을 자연스럽게 거리로 확장시키는 역할.

  • 단정한 전시 연출 중심의 갤러리형 쇼룸 구성
    넉넉한 여백과 벽면 디스플레이 중심의 레이아웃이 제품 자체에 집중할 수 있는 갤러리형 동선을 만들어, 브랜드의 미적 감도와 프리미엄 무드 부각.


AFTER PRAY|Sungsu

DESIGN PROPOSAL

애프터 프레이 성수 디자인 제안서

· Category / Show Room

· Site / Seongdong-gu, Seoul

· Area / 34.5㎡ / 10py

CONCEPT MOTIVE


  • 파빌리온의  현대적 재해석

          “파빌리온”은 단순한 구조물이 아니라 ‘감정적 상징 구조물’로 감정에 집중하는 공간

          -  브랜드 세계관을 감성적으로 표현하는 장치, 감정의 실험장 

          -  정제된 취향과 시대정신을 응축한 장소 > 상징적인 공간

          -판매가 아니라 체험을 위한 공간


  • 핵심 목표
    15평이라는 제약된 공간, 감정을 머무르게 하는 감각의 신전으로
    -작지만 깊은 공간 경험
    -감성 중심의 브랜드 세계관 전달
    -공간이 메시지가 되는 구조 설계 > 레이아웃의 중요성


REFERENCE ANALYSIS


  • 레퍼런스 분석 / Barcelona Pavilion (1929)
    루트비히 미스 반 데로에 + 릴리 라이히
    1929년 바르셀로나 국제박람회 독일관
    상징성과 감각에 집중한 비기능적 전시관, 임시 설치물


  • 철학

        -‘Less is more’ 최소한의 요소로 최대의 감각적 효과

       -기능보다 감정과 인식에 초점을 둔 공간

       -건축과 자연, 재료와 빛, 투명성과 반사성의 상호작용


  • 브랜드 연결성 (파빌리온 & 애프터프레이)
       -“ 도심 속 감정의 신전”이라는 개념과 바르셀로나 파빌리온의 연결성
      - 감각의 초점화: 시각, 촉각, 향기와 같은 감각 자극을 통해 경험 중심 공간 구성
      - 비움과 여백: 단순하지만 밀도 있는 구성으로 감정을 채움
      - 공간 = 메시지: 제품보다 브랜드 철학을 우선시

SPACE DESIGN CONCEPT


  • 미니멀 모노톤 기반의 정제된 공간
    전체적으로 화이트·그레이 톤을 중심으로 한 절제된 팔레트가 적용되어, 브랜드의 깔끔하고 담백한 이미지 강조.

  • 따뜻한 우드 포인트와 금속 구조물의 대비
    우드 쇼케이스와 디스플레이 가구가 공간에 온기를 더하며, 금속 행거 시스템은 직선적이고 구조적인 분위기를 형성해 균형 있는 무드 완성.

  • 개방감과 투명성을 강화한 파사드 디자인
    전면 유리 입면을 통해 실내가 그대로 드러나며, 브랜드 아이덴티티와 상품을 자연스럽게 거리로 확장시키는 역할.

  • 단정한 전시 연출 중심의 갤러리형 쇼룸 구성
    넉넉한 여백과 벽면 디스플레이 중심의 레이아웃이 제품 자체에 집중할 수 있는 갤러리형 동선을 만들어, 브랜드의 미적 감도와 프리미엄 무드 부각.


PERSPECTIVE

(주) 스튜디오파브


T 02 353 6317

F 02 335 6318

E studiofab@naver.com

@designstudio_fab


4F, 53, Seongam-ro 15-gil, Mapo-gu, Seoul

서울특별시 마포구 성암로15길 53 (상암동) 4층