EDUPLEX MANUAL
DESIGN PROPOSAL
에듀플렉스 메뉴얼 디자인 제안서
· Category / ACADEMY MANUAL
다양한 학생을 위한 다양한 학습법을 제시하는 에듀플렉스는, 학습 장소의 전환을 통해 집중력을 충전할 수 있는 공간이 모이는 곳으로써, Edu-Hub라는 새로운 통합 학습 공간을 만들어내고자 합니다.
학습의 본질적이고 기능적인 면에 집중 가능하면서, 편안한 무드를 제안합니다.
① Beige
아이보리(ivory)는 맑고 편안한 색
베이지(Beige)는 자연의 온화한 색
공간의 바탕이 되는 색으로
베이지 계열 (아이보리, 베이지, 우드)
② Blue
하늘색(Light blue)은 예술적, 창조적으로 상상력의 색
짙은 파랑(Dark)은 마음을 진정시키고 집중력 향상의 색
에듀플렉스의 칼라이자, 포인트가 되는 색으로
블루 계열 (스카이블루, 블루, 네이비)
+
아이보리(ivory)는 맑고 편안한 색 베이지(Beige)는 자연의 온화한 색
공간의 바탕이 되는 색으로 베이지 계열 (아이보리, 베이지, 우드)
에듀플렉스의 칼라이자, 포인트가 되는 색으로 블루 계열 (스카이블루, 블루, 네이비)
따뜻한 톤의 베이지 컬러 부터 차분한 분위기의 블루 컬러톤의 대비되는 마감재로 깔끔하고 차분한 분위기 연출.
MATERIAL BOARD
- 따뜻한 톤의 베이지 컬러 부터 차분한 분위기의 블루 컬러톤의 대비되는 마감재로 깔끔하고 차분한 분위기 연출.
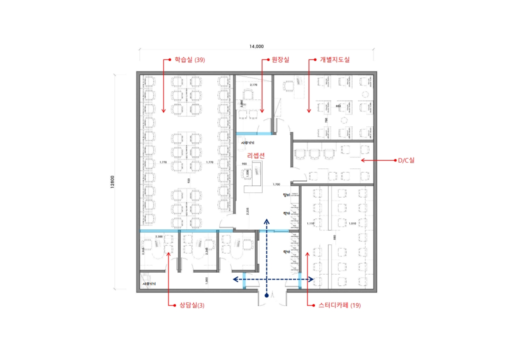
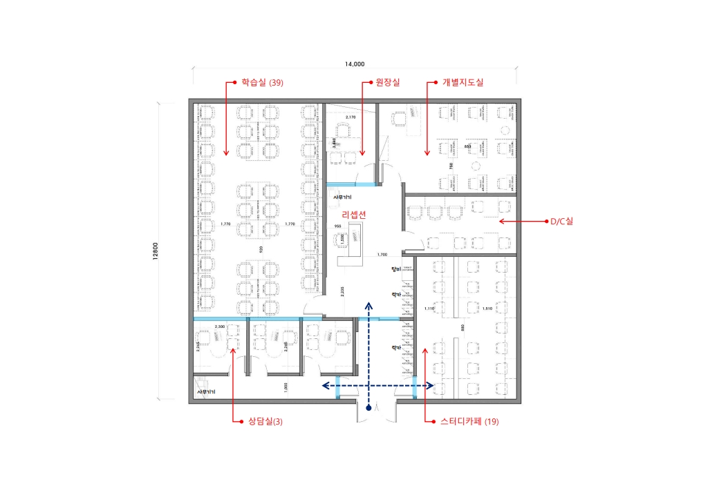
FLOOR PLAN / ISO VIEW
중앙 리셉션을 기준으로 학습·상담·관리를 명확히 구획한 효율적 학원 평면 구성입니다.학생의 집중도와 운영 동선을 최적화하며, 상담·코칭·관리 기능이 자연스럽게 연계되도록 설계하였습니다.
ISO VIEW / FLOOR PLAN
PERSPECTIVE GALLERY
(주) 스튜디오파브
T 02 353 6317
F 02 335 6318
E studiofab@naver.com
@designstudio_fab
4F, 53, Seongam-ro 15-gil, Mapo-gu, Seoul
서울특별시 마포구 성암로15길 53 (상암동) 4층