EDUPLEX MANUAL

DESIGN SPEC BOOK

에듀플렉스 메뉴얼 디자인 스펙북

· Category / ACADEMY MANUAL

  


  EDUPLEX MANUAL

  DESIGN PROPOSAL

   에듀플렉스 메뉴얼 스펙북

· Category / ACADEMY MANUAL

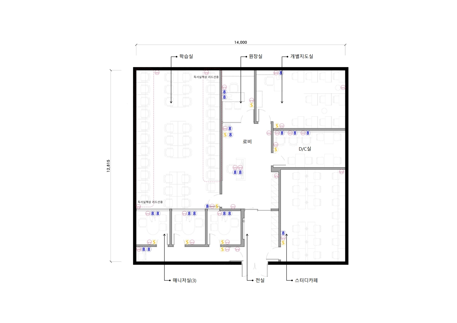
TYPICAL FLOOR PLAN / FINISH

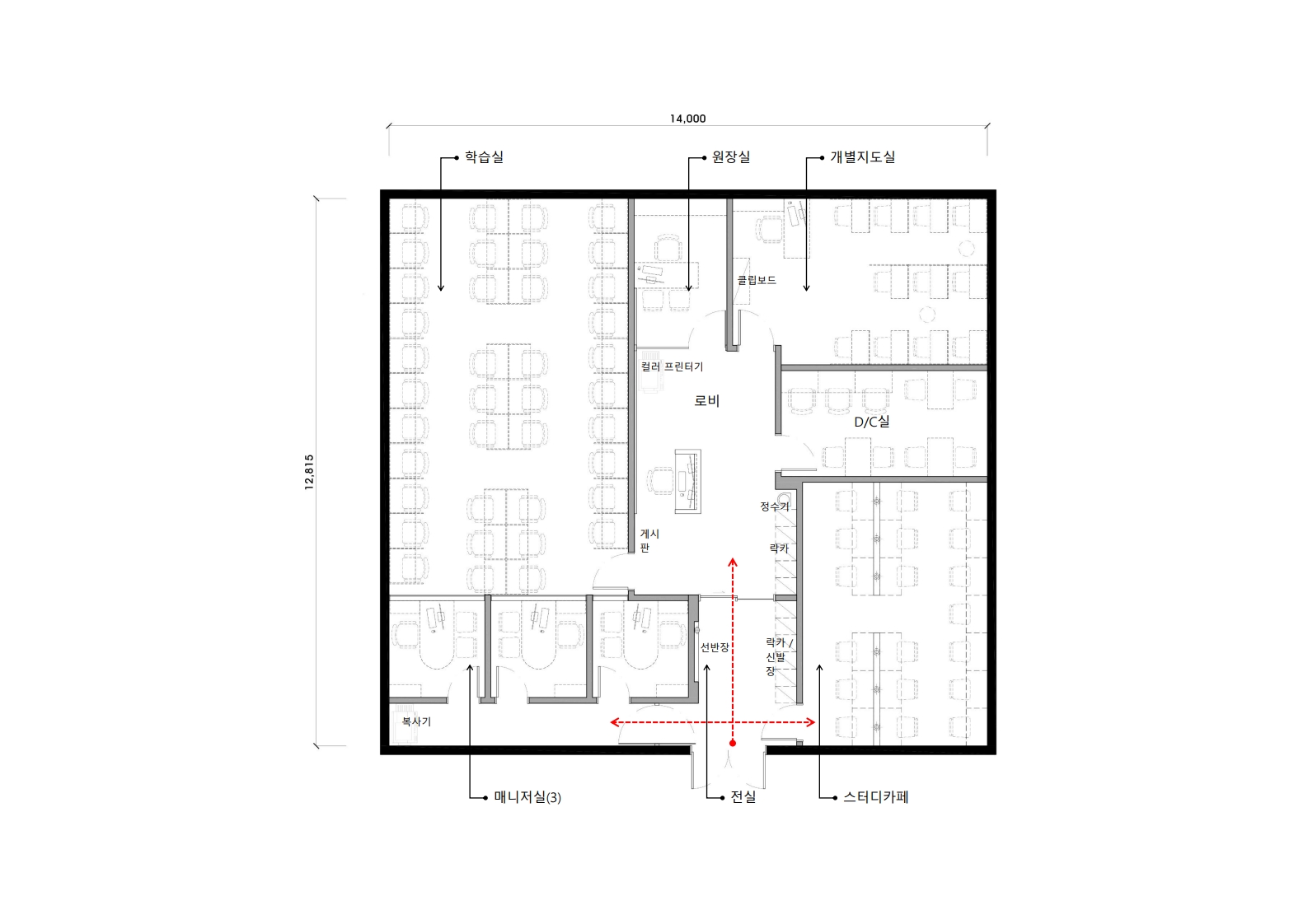
※ 설계 시, 고려사항

1.학원 공간과 심리상담연구소, 스터디 카페 공간은 주 출입구에서 별도의 문으로 입구 분리 필요

2. 각각 매니저실의 창을 통하여, 학습실의 학생들을 볼 수 있게 구성

 →매니저실 옆이 학습실이 되도록 공간 구획


3.원장실의 통유리벽을 통하여 인포데스크 등 외부를  한 눈에 볼 수 있게 구성


4.실 구성: 학습공간 1개 (매니저실*18명),

원장실 1개(최소사이즈 2100*2400), 개별지도실 1개(좌석 9~21개),

D.C실 1개 / 탕비실 및 대기 공간(선택사항)


5.매니저실(실당 6㎡이상) 2개~4개, 개수는 평수에 따라 유동적


6. 강의실 사이즈는 지역 조례에 따라 인허가 완비되는 조건으로 설계 및 시공 (인허가 시 필요 서류: 시설 평면도, 학원 위치도)

→원장실, 교사실, 화장실, 수업을 하지 않는 공간, 탕비실, 창고, 복도, 기둥,

로비, 창문 젠다이 별도 면적 (강의실 연면적)

→ 강의실 1개의 최소 사이즈 10㎡


7. 복사기, 정수기, 쓰레기통, 게시판, 락카, 신발장, 클립보드, 컬러 프린트기,

청소기 보관 자리 : 도면 내 반영 필요


8. 인포데스크 (인포데스크 부터 뒷벽까지 거리 최소 900이상/ 가로 장변

1인 근무시 최소 1,500 이상)


9. 강화유리 10T 시공 /  하부 H:60mm 민자 걸레받이 (화이트)


10.건물의 학원 총 바닥 면적 합계 570㎡ 이상일 경우,

전기 단선결선도 작성 필요 (전기 안전점검 신청 시 필요)

A
A
B
B
C
C
D
D
E
E
F
F
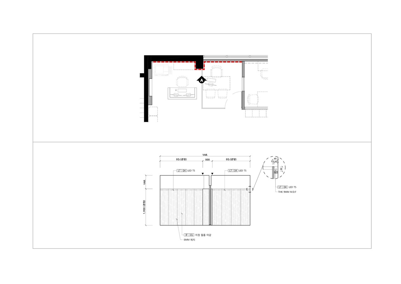
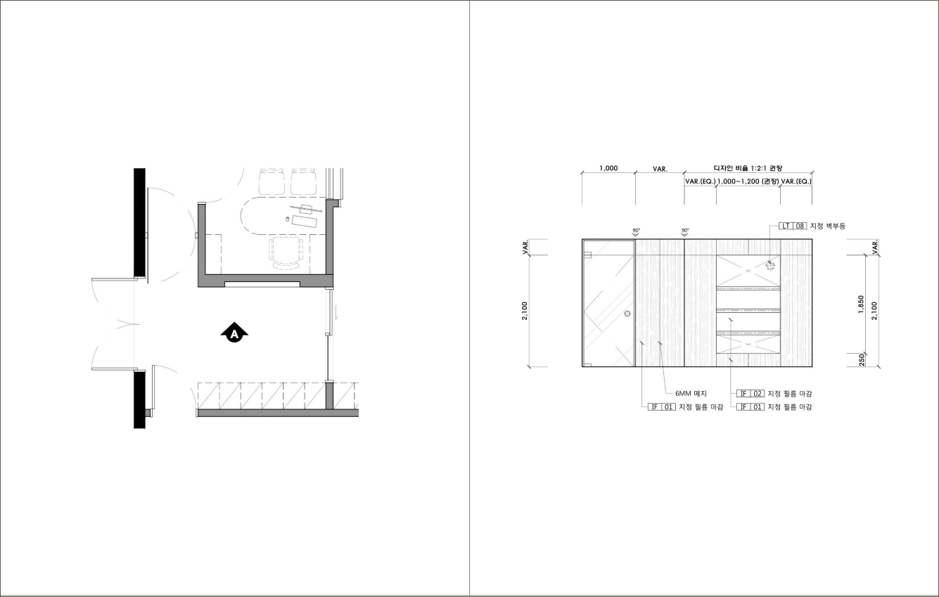
TYPICAL CEILING PLAN 
FINISH / ELECTRIC
CEILING LIGHTING PLAN
CEILING LIGHTING PLAN
CEILING FINISH COLORING
CEILING FINISH COLORING
ELECTRIC LINE PLAN
ELECTRIC LINE PLAN

ISO VIEW

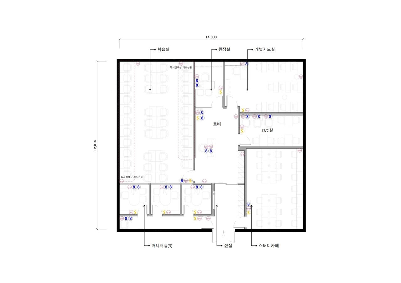
중앙 리셉션을 기준으로 학습·상담·관리를 명확히 구획한 효율적 학원 평면 구성입니다.
학생의 집중도와 운영 동선을 최적화하며, 상담·코칭·관리 기능이 자연스럽게 연계되도록 설계하였습니다.

ISO VIEW

중앙 리셉션을 기준으로 학습·상담·관리를 명확히 구획한 효율적 학원 평면 구성입니다.

학생의 집중도와 운영 동선을 최적화하며, 상담·코칭·관리 기능이 자연스럽게 연계되도록 설계하였습니다.

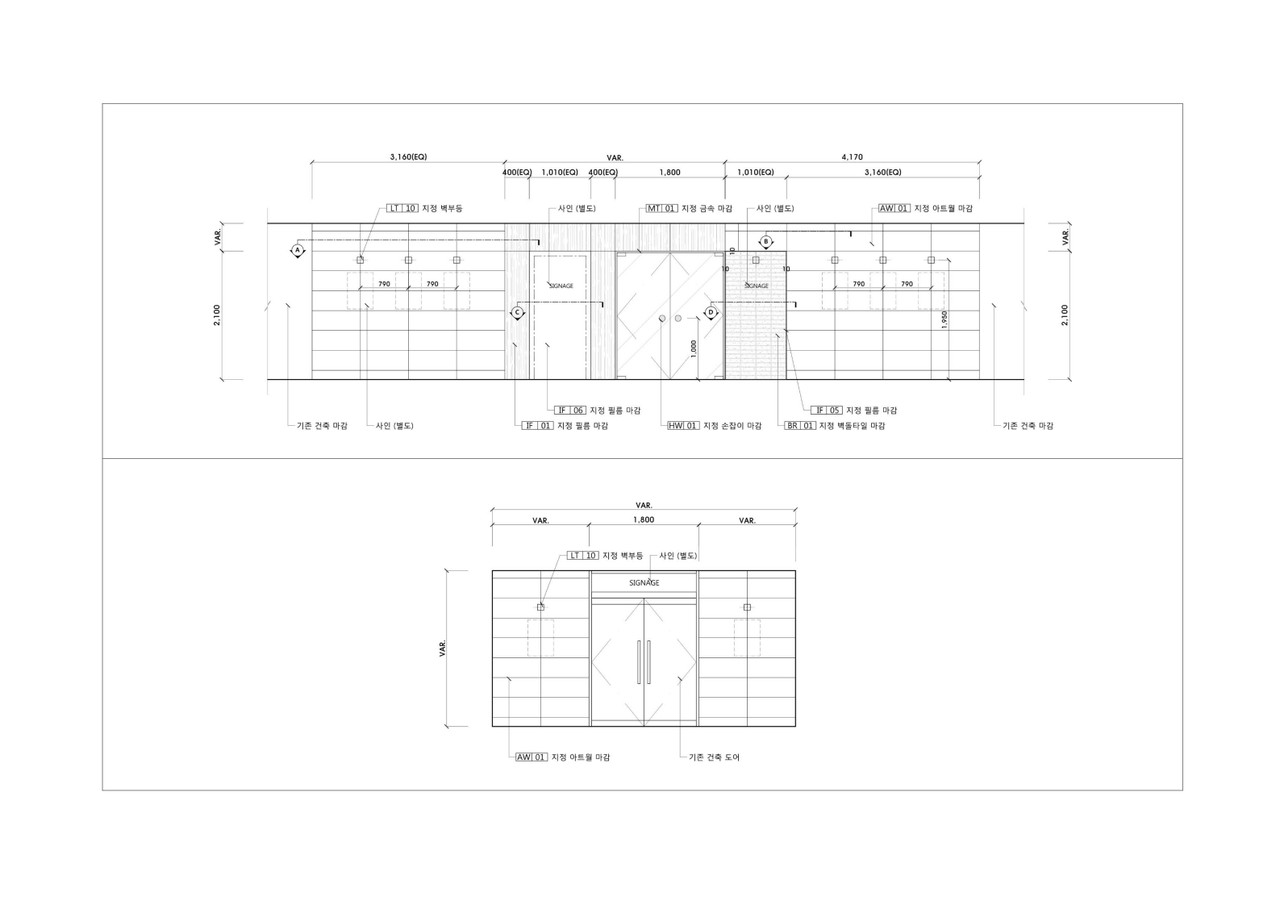
FACADE VIEW / PLAN

LIGHTING SPEC.

A
A
B
B
C
C
D
D
E
E

ENTRANCE VIEW / PLAN

A
A
B
B
C
C
D
D
E
E
F
F

LOBBY VIEW / PLAN

A
A
B
B
C
C
D
D
E
E

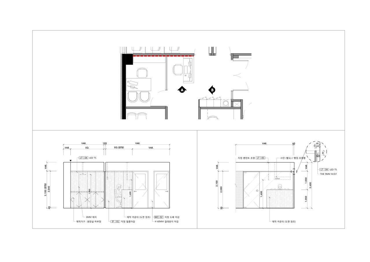
LEDGER ROOM VIEW / PLAN

A
A
B
B

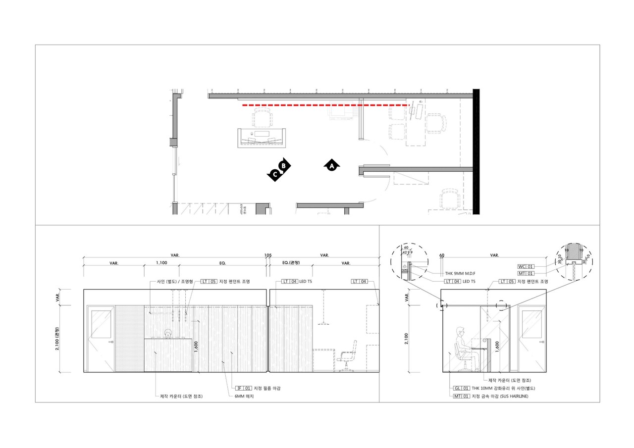
STUDY ROOM / D.C / MANAGER ROOM VIEW

STUDY CAFE VIEW / PLAN

A
A
B
B
C
C
D
D
메인 도어
메인 도어
타공 도어
타공 도어
강화유리 도어
강화유리 도어

LIGHTING SPEC.

(주) 스튜디오파브


02 353 6317

02 335 6318

studiofab@naver.com

@designstudio_fab

4F, 53, Seongam-ro 15-gil, Mapo-gu, Seoul

서울특별시 마포구 성암로15길 53 (상암동) 4층