HOTEL GRAN

DESIGN PROPOSAL

군산 그란 호텔 디자인 제안서

· Category / Hotel

· Site / Gunsan-si  Jeollabuk-do 

· Area / 55㎡ / 16py (1F) / 240㎡ / 73py (2F~5F 각) / 168㎡ / 50py (6F)

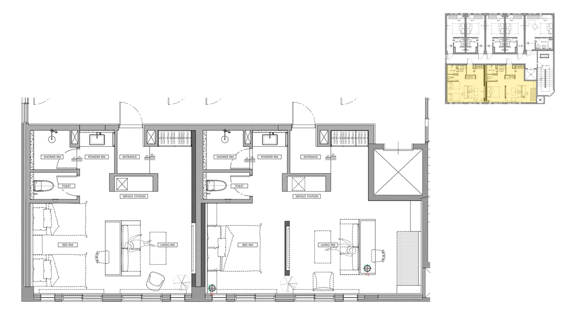
FLOOR PLAN

4,5F (TYPE A,B)

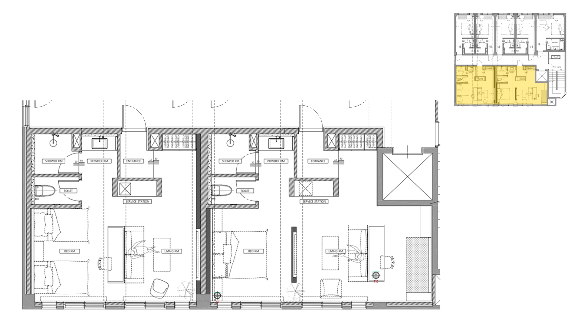
FLOOR PLAN

4,5F (TYPE C,D)

FLOOR PLAN

6F (TYPE E)

FLOOR PLAN

6F (TYPE F)

  


  HOTEL GRAN

  DESIGN PROPOSAL

   군산 그란 호텔 디자인 제안서

· Category / Hotel 

· Site / Gunsan-si  Jeollabuk-do 

· Area / 55㎡ / 16py (1F) / 240㎡ / 73py (2F~5F 각) /

168㎡ / 50py (6F)

FLOOR PLAN

1F (LOBBY)

FLOOR PLAN

2,3F (TYPE G)

FLOOR PLAN

4,5F (TYPE A,B)

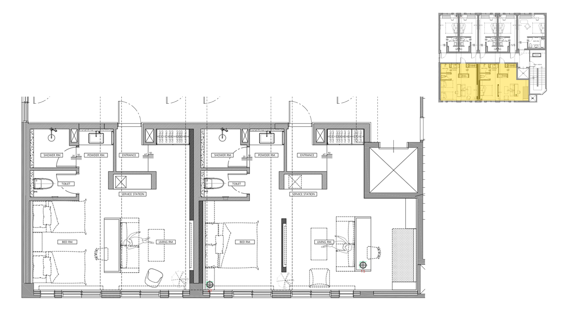
FLOOR PLAN

4,5F (TYPE C,D)

FLOOR PLAN

6F (TYPE E)

FLOOR PLAN

6F (TYPE F)

PERSPECTIVE GALLERY

(주) 스튜디오파브


02 353 6317

02 335 6318

studiofab@naver.com

@designstudio_fab

4F, 53, Seongam-ro 15-gil, Mapo-gu, Seoul

서울특별시 마포구 성암로15길 53 (상암동) 4층