UNIPOP ART SPACE

DESIGN PROPOSAL

유니팝 아트스페이스 디자인 제안서

· Category / CAFE

· Site / Gwangmyeong-si, Gyeonggi-do 

· Area / 137㎡ / 42py



  


  UNIPOP ART SPACE

  DESIGN PROPOSAL

   유니팝 아트스페이스 디자인 제안서

· Category / CAFE

· Site / Gwangmyeong-si, Gyeonggi-do 

· Area / 137㎡ / 42py


CONCEPT MOTIVE

해당 작품의 이미지에서 영감을 얻어 유니팝 아트스페이스의 공간 컨셉을 만들고자 하였습니다.


삼각형, 사다리꼴 등 기하학적 패턴의 분절된 면구성과 브라운·네이비·그레이의 강한 색이 대비되고,

서로 다른 색(녹색, 노란색, 붉은색)의 모듈들이 공간의 리듬을 형성하며,

프레임 수직라인들에서 리듬감·공간적 깊이를 강화하고자 합니다.


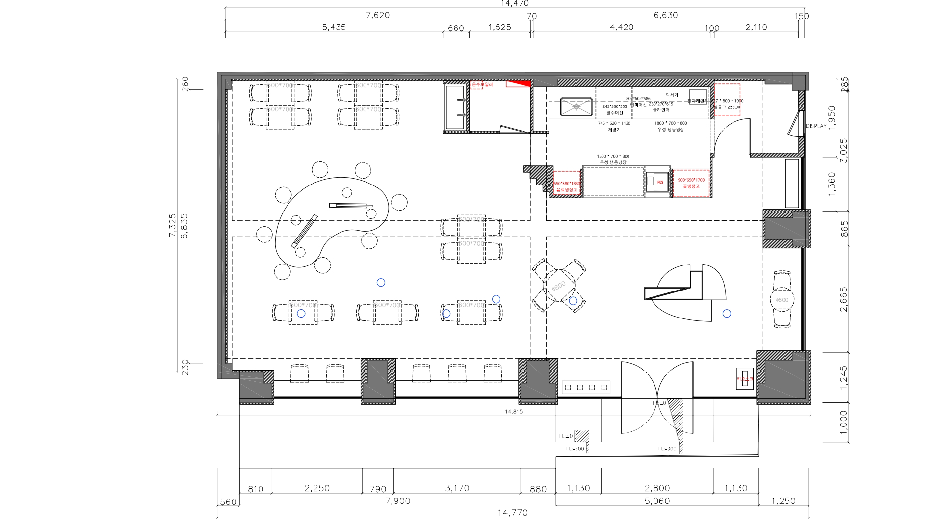
FLOOR PLAN


공간에 들어서면 메인 출입구 맞은편에 카페가 있고, 홀은 비교적 여유로운 좌석 배치를 하였습니다.

고객은 음료를 구입하면서 점원에게 내부 프로그램에 대해 안내를 받아볼 수 있으며, 아트스페이스 공간에 어울리도록 조형감이 돋보이는 테이블과 책장을 두어 공간 컨셉에 어울리도록 배치하였습니다.

넉넉한 사이즈의 곡선형 테이블은 파사드 유리창 너머 보이도록 중앙에 배치하여 공간의 중심을 잡아주도록 하였습니다.

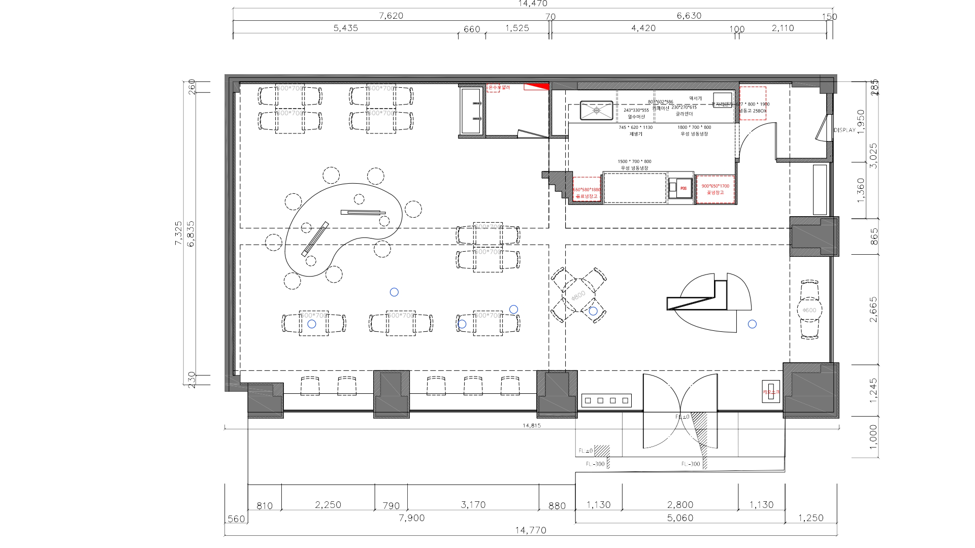
FLOOR PLAN


공간에 들어서면 메인 출입구 맞은편에 카페가 있고, 홀은 비교적 여유로운 좌석 배치를 하였습니다.


고객은 음료를 구입하면서 점원에게 내부 프로그램에 대해 안내를 받아볼 수 있으며, 아트스페이스 공간에 어울리도록 조형감이 돋보이는 테이블과 책장을 두어 공간 컨셉에 어울리도록 배치하였습니다.


넉넉한 사이즈의 곡선형 테이블은 파사드 유리창 너머 보이도록 중앙에 배치하여 공간의 중심을 잡아주도록 하였습니다.

PERSPECTIVE GALLERY

(주) 스튜디오파브


02 353 6317

02 335 6318

studiofab@naver.com

@designstudio_fab

4F, 53, Seongam-ro 15-gil, Mapo-gu, Seoul

서울특별시 마포구 성암로15길 53 (상암동) 4층