SHINSUNG TONGSANG OFFICE (15F)

DESIGN PROPOSAL

신성통상 사무실 (15F) 디자인 제안서

· Category / OFFICE

· Site / Gwangmyeong-si, Gyeonggi-do 

· Area / 2324㎡ / 703py

  


  SHINSUNG TONGSANG OFFCE 15F

  DESIGN PROPOSAL

   신성통상 사무실 15F 디자인 제안서

· Category / OFFICE

· Site / Gwangmyeong-si, Gyeonggi-do 

· Area / 2324㎡ / 703py

FLOOR PLAN

해당 평면도에 노란색 표시된 곳은 약 25평 규모의 대회의실로, 중앙에 대형 회의테이블을 배치하고, 벽면에는 금속 행거와 옷걸이 시스템을 설치하여 의류 샘플 활용이 용이한 전시형 회의 환경을 구축하였습니다.

대회의실을 중심으로 소회의실, 컬러오피스, 탕비실 등 실무 지원공간을 아래측에 배치해 업무 동선을 효율화하였으며, 입구 로비 뒤편에는 전표실·창고·소회의실을 배치하여 사무지원 기능을 집중시켰습니다.

이어 내부 코어에는 이사실–전무실–부회장실 순으로 이어지는 임원 공간을 배치하여 프라이버시와 독립성을 확보했습니다.

좌측 창가 라인은 개방감과 자연채광을 고려하여 관리팀, 전산팀, 자재실, 기획실, 영업부서 등을 배치하였고, 내부 면에는 추가 임원실을 구성하여 팀 간 협업과 직무 연계성이 강화된 수평적 업무환경을 조성했습니다.

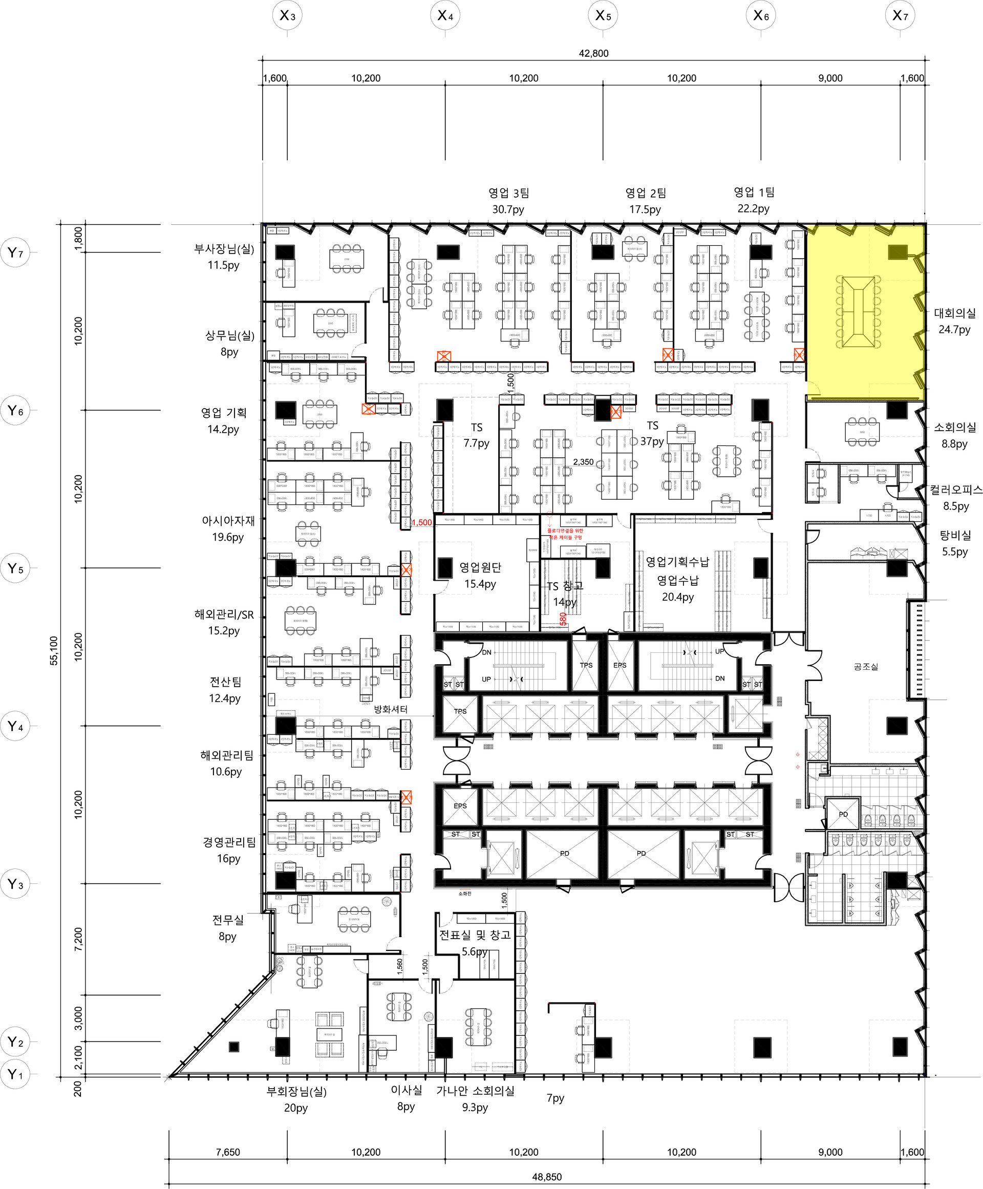
FLOOR PLAN


해당 평면도에 노란색 표시된 곳은 약 25평 규모의 대회의실로, 중앙에 대형 회의테이블을 배치하고, 벽면에는 금속 행거와 옷걸이 시스템을 설치하여 의류 샘플 활용이 용이한 전시형 회의 환경을 구축하였습니다.


대회의실을 중심으로 소회의실, 컬러오피스, 탕비실 등 실무 지원공간을 아래측에 배치해 업무 동선을 효율화하였으며, 입구 로비 뒤편에는 전표실·창고·소회의실을 배치하여 사무지원 기능을 집중시켰습니다.


이어 내부 코어에는 이사실–전무실–부회장실 순으로 이어지는 임원 공간을 배치하여 프라이버시와 독립성을 확보했습니다.


좌측 창가 라인은 개방감과 자연채광을 고려하여 관리팀, 전산팀, 자재실, 기획실, 영업부서 등을 배치하였고, 내부 면에는 추가 임원실을 구성하여 팀 간 협업과 직무 연계성이 강화된 수평적 업무환경을 조성했습니다.

PERSPECTIVE GALLERY

(주) 스튜디오파브


02 353 6317

02 335 6318

studiofab@naver.com

@designstudio_fab

4F, 53, Seongam-ro 15-gil, Mapo-gu, Seoul

서울특별시 마포구 성암로15길 53 (상암동) 4층