Deep In Sight - Work Space

Design Proposal

딥 인 사이트 사무실 디자인 제안서

· Category / OFFICE

· Site / Bundang-gu, Seongnam

· Area / 588㎡ / 178py

DESIGN CONCEPT KEY WORD

Blue Minimalism



  


  Deep In Sight - Work Space

  Design Proposal

   딥 인 사이트 사무공간 디자인 제안서 

· Category / OFFICE

· Site / Bundang-gu, Seongnam

· Area / 588㎡ / 178py

DESIGN CONCEPT KEY WORD

Blue Minimalism

· Blue

     모던한 화이트 배경을 바탕으로 브랜드 컬러인 블루를 포인트로 사용하여, 기업의 아이덴티티 및 정체성을 효과적으로 보여줍니다.


· Minimalism

  정돈된 미니멀리즘 디자인은 현대적이고 세련된 이미지를 제공하며, 시각적으로 깔끔한 공간으로 보여줍니다.

BLUE MOOD IMAGE

LAY OUT


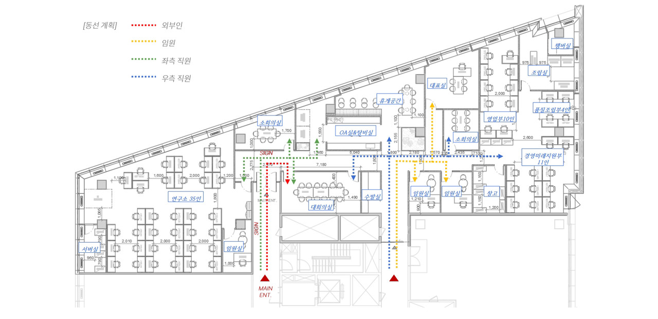
ZONING & FLOW PLANNING

ISO VIEW

PERSPECTIVE GALLERY

(주) 스튜디오파브


02 353 6317

02 335 6318

studiofab@naver.com

@designstudio_fab

4F, 53, Seongam-ro 15-gil, Mapo-gu, Seoul

서울특별시 마포구 성암로15길 53 (상암동) 4층