Gallery it Banpo One Bailey
Design Proposal
갤러리 잇 반포 원베일리 디자인 제안서
· Category / Gallery
· Site / Banpo-dong, Seocho-gu, Seoul
· Area / 242㎡ / 73py
GALLERY WALL IMAGE
메인 홀 복도를 따라 길게 뻗은 벽면과 중앙 복도에 일부 벽을 세워,
그림을 걸어 둘 수 있는 장치로 활용할 수 있도록 제안.
메인 홀 복도를 따라 길게 뻗은 벽면과 중앙 복도에 일부 벽을
세워, 그림을 걸어 둘 수 있는 장치로 활용할 수 있도록 제안.
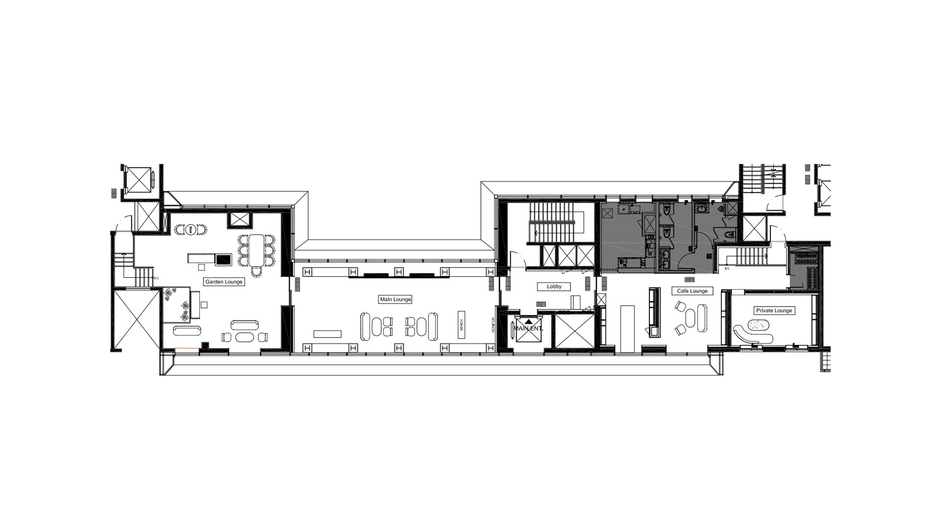
FLOOR PLAN (기존 레이아웃)
ISO VIEW
Type A DETAIL VIEW
A 가벽은 좌측 사선형 전시 부스와 인접한 자동문 사이의 동선을 정리하기 위해 직선 형태로 계획 되었습니다.
공간의 흐름이 분산되지 않도록 시각적 기준선을 형성하며, 라운지로 이어지는 이동 동선을 명확히 구분합니다.
이를 통해 전시 공간의 질서를 유지하면서도 관람자의 이동이 자연스럽게 유도되도록 하였습니다.
B 가벽은 로비에서 내부를 마주했을 때, 전시 가벽이 정면이 아닌 살짝 틀어진 각도로 배치되어 있습니다.
이러한 비정형적 배치는 공간에 리듬감을 부여하고, 내부 전시 공간에 대한 시각적 긴장감과 호기심을 유발합니다.
관람자는 완전히 드러나지 않은 전시 일부를 인지하며 자연스럽게 공간 안으로 진입하도록 유도됩니다.
PERSPECTIVE
Lobby
MAIN LOUNGE
- Type A DETAIL VIEW
A 가벽은 좌측 사선형 전시 부스와 인접한 자동문 사이의 동선을 정리하기 위해
직선 형태로 계획 되었습니다.
공간의 흐름이 분산되지 않도록 시각적 기준선을 형성하며, 라운지로 이어지는
이동 동선을 명확히 구분합니다.
이를 통해 전시 공간의 질서를 유지하면서도 관람자의 이동이 자연스럽게 유도되도록
하였습니다.
PERSPECTIVE - Lobby
메인 라운지 - 영상존
Main Lounge - Video Zone메인 라운지 - 영상존
메인 라운지 - 전시 부스
Main Lounge - Exhibition Booth메인 라운지 - 전시 부스
가든 라운지 뷰 01
Garden Lounge View 01가든 라운지 뷰 01
가든 라운지 뷰 02
Garden Lounge View 02가든 라운지 뷰 02
가든 라운지 뷰 03
Garden Lounge View 03가든 라운지 뷰 03
카페 라운지 01
Cafe Lounge View 01카페 라운지 01
카페 라운지 뷰 02
Cafe Lounge View 02카페 라운지 뷰 02
프라이빗 라운지 뷰 01
Private Lounge View 01프라이빗 라운지 뷰 01
프라이빗 라운지 뷰 02
Private Lounge View 02프라이빗 라운지 뷰 02
(주) 스튜디오파브
T 02 353 6317
F 02 335 6318
E studiofab@naver.com
@designstudio_fab
4F, 53, Seongam-ro 15-gil, Mapo-gu, Seoul
서울특별시 마포구 성암로15길 53 (상암동) 4층