Lumiar Chungdam

Design Proposal

루미아르 청담 디자인 제안서

· Category / Lounge Bar

· Site / Cheongdam-dong, Gangnam-gu

· Area / 656㎡,198py (1F) 327㎡,99py (2F)


  


  Lumiar Chungdam

  Design Proposal

  루미아르 청담 디자인 제안서 

· Category / Lounge Bar

· Site / Cheongdam-dong, Gangnam-gu

· Area / 656㎡,198py (1F) 327㎡,99py (2F)




CONCEPT STORY

Dance of Light and Water

빛과 물의 춤


도심의 번잡함 속에서 호수는

잠시 멈춰 서서 반사된 빛을 바라볼 수 있는 장소입니다.

‘루미아르’는 그 호수 위 빛의 다채로운 순간으로 재해석한 공간입니다.

이곳에 들어오는 순간,


고객은 하루의 다양한 빛의 순간을 경험하며

자신만의 추억을 만들어 갑니다.

CONCEPT STORY LINE

· Morning Dew


아침 이슬에 반사된 첫 빛

·  Golden Reflection


황금빛 석양이 물결에 스며드는 순간

·  Starlit Waves


별빛이 반짝이는 호수의 밤

·  Hidden Oasis


숲 속으로 스며드는 은은한 빛

절제미를 담은 고급스러움과 과하지 않은 트렌디함.


1. Main Hall


   메인 홀은 "빛의 다리" 역할을 합니다.


   a. 공간 중앙에 거울 물결 패턴을 배치해 호수의 수면을 표현


  b.  천장에서 떨어지는 은은한 조명을 통해 빛과 물의 조화를 극대화


   - 조명 연출: 시간대에 따라 변화하는 빛의 색상(아침, 석양, 밤 등).

   - 포토존: 거울 조형물로 "빛과 자신"을 담은 사진 촬영 가능.

   - 메뉴 스토리: 칵테일 메뉴에 "빛의 이름"을 붙여 각 순간의 컨셉과 연결

      (예: "First Ray" 아침 칵테일, "Golden Glow" 석양 칵테일)


2. 고객의 여정


  고객은 루미아르에 들어와 새벽, 황혼, 밤, 숲이라는 "빛의 순간"을 여행하며

  각 공간에서 특별한 감정을 느끼고, 추억을 담아갈 수 있습니다.

  마지막에는 "빛과 함께한 여정"을 떠올릴 수 있는 작은 메시지 카드나

  기념 굿즈(루미아르의 시그니처 향이 담긴 미니 캔들 등)를 제공해 긴 여운을 남깁니다.


mobile background

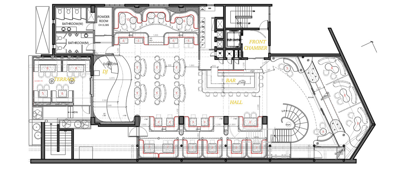
FLOOR PLAN (2F,1F)

FLOOR PLAN

3D IMAGE 

PERSPECTIVE (2ST FLOOR HALL)

 

PERSPECTIVE (VIP ROOM TYPE)

CONCEPT IMAGE & PERSPECTIVE

VIP ROOM TYPE A


1. "Nature meets Modern Luxury"
자연과 현대적 감각이 만나는 프리미엄 휴식 공간

2. "Rock Serenity"
암석의 강인함 속에 머무는 고요한 럭셔리

3. "The Cave Retreat"
도심 속 숨겨진 동굴, 프라이빗한 힐링의 시작

4. "Raw Elegance"
자연의 거친 질감과 세련된 디자인이 어우러진 공간


CONCEPT IMAGE & PERSPECTIVE

VIP ROOM TYPE B


1. Aurora Immersion Lounge
어둠 속에서 빛이 흐르는 오로라의 깊이를 경험하는 공간

2. Midnight Aurora Suite
한밤의 고요 위로 펼쳐지는 오로라의 색채를 담아낸 프라이빗 룸

3. Chromatic Aurora Chamber
빛이 스며들고 번지는 오로라의 스펙트럼을 공간으로 구현한 VIP라운지

4. Northern Glow Private Room
북쪽 하늘의 은은한 발광을 품은 고요한 프라이빗 공간

5. Aurora Veil VIP Room
빛의 장막이 드리운 듯 은밀하고도 몽환적인 분위기의 룸


CONCEPT IMAGE & PERSPECTIVE

VIP ROOM TYPE C


1. “Organic Void Lounge”
비정형의 자연적 틈을 공간으로 재해석한 프라이빗 라운지

2. “Strata & Shadow”
지층의 결과 그림자가 겹겹이 드러나는 깊이의 공간

3. “Raw Contour Suite”
가공되지 않은 자연의 윤곽을 모티브로 만든 감각적 VIP룸

4. “Cave Luxe Chamber”
동굴의 유기적 구조를 현대적으로 해석한 고급 프라이빗 스페이스

5. “Eroded Form Lounge”
침식된 자연의 형태가 만들어낸 조형미를 담은 공간


KEYWORD FOR SPACE DESIGN

FLOW


- 물줄기에서 느껴지는 물의 반짝임

- 연속적인 수직라인의 리듬감

CLOUD


- 무중력 느낌의 페일 톤, 은은한 광원 번짐 

- 말랑한 볼륨감, 흐르는 소프트 실루엣

ORGANIC LINE


-층위가 드러나는 레이어링, 시간의 결을 담은 연속된 라인

-단면을 드러내는 조형적 면 처리

LOUNGE


-여유로운 오픈 플랜

-라탄·천연섬유·녹음 요소, 편안한 라운지 분위기

CURVE


-흐르는 스플라인 형태, 유려한 프로파일

-연속 난간(심리스 디테일), 간접 조명으로 조형감 강화

PERSPECTIVE GALLERY

(주) 스튜디오파브


02 353 6317

02 335 6318

studiofab@naver.com

@designstudio_fab

4F, 53, Seongam-ro 15-gil, Mapo-gu, Seoul

서울특별시 마포구 성암로15길 53 (상암동) 4층