Docho Hydrangea Cafe

Design Proposal

도초수국 카페 디자인 제안서

· Category / Cafe

· Site / Sinan-gun, Jeollanam-do

· Area / 248㎡ / 75py

  

   

   Docho Hydrangea Cafe

   Design Proposal

    도초수국 카페 디자인 제안서

· Category / Cafe

· Site / Sinan-gun, Jeollanam-do

· Area / 248㎡ / 75py

CONCEPT IMAGE

전면이 통창으로 이루어져 있는 내부에 외부 자연을 그대로 끌어들여 수국이 피어나는 도초의 풍경을 실내로 확장시키며 유리온실과 같은 투명한 감성을 제공하고자 합니다.


오픈 단차 형식의 매스를 통해 외부와 내부의 경계를 자연스럽게 스며들도록 하였으며, 단차 위에 배치된 좌석은 카페 전체를 유기적으로 연결하면서도 각자의 시선과 프라이버시를 확보하도록 계획하여, 방문객이 자연스럽게 머물고 싶은 공간을 형성하고자 하였습니다.


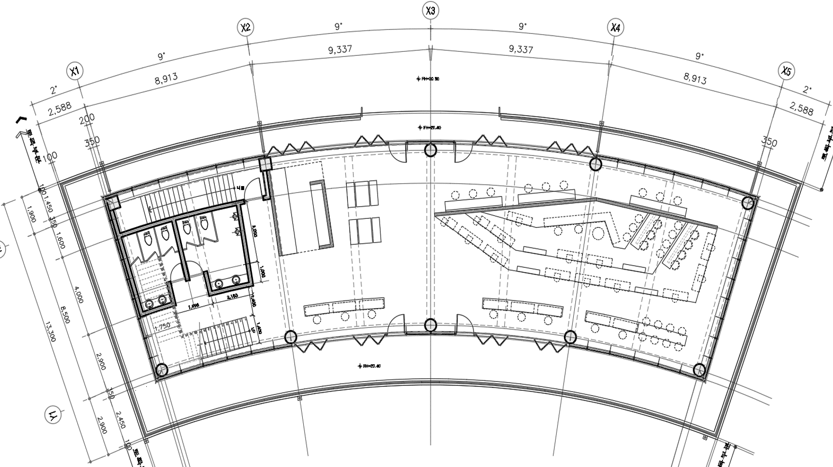
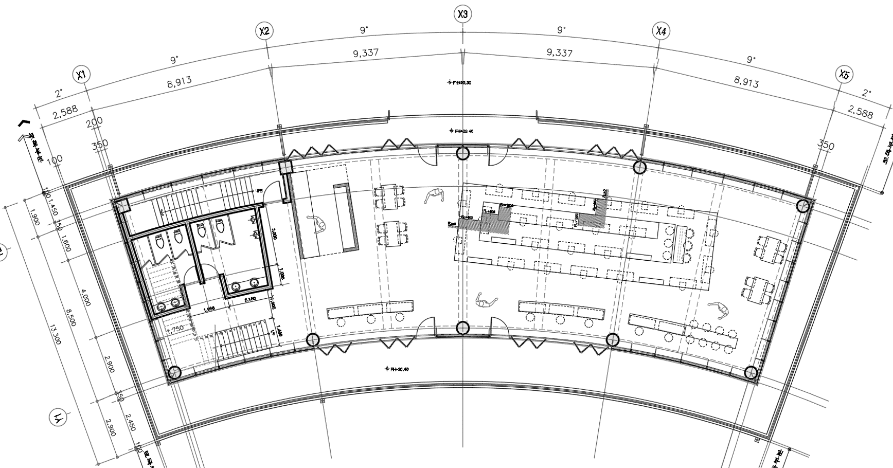
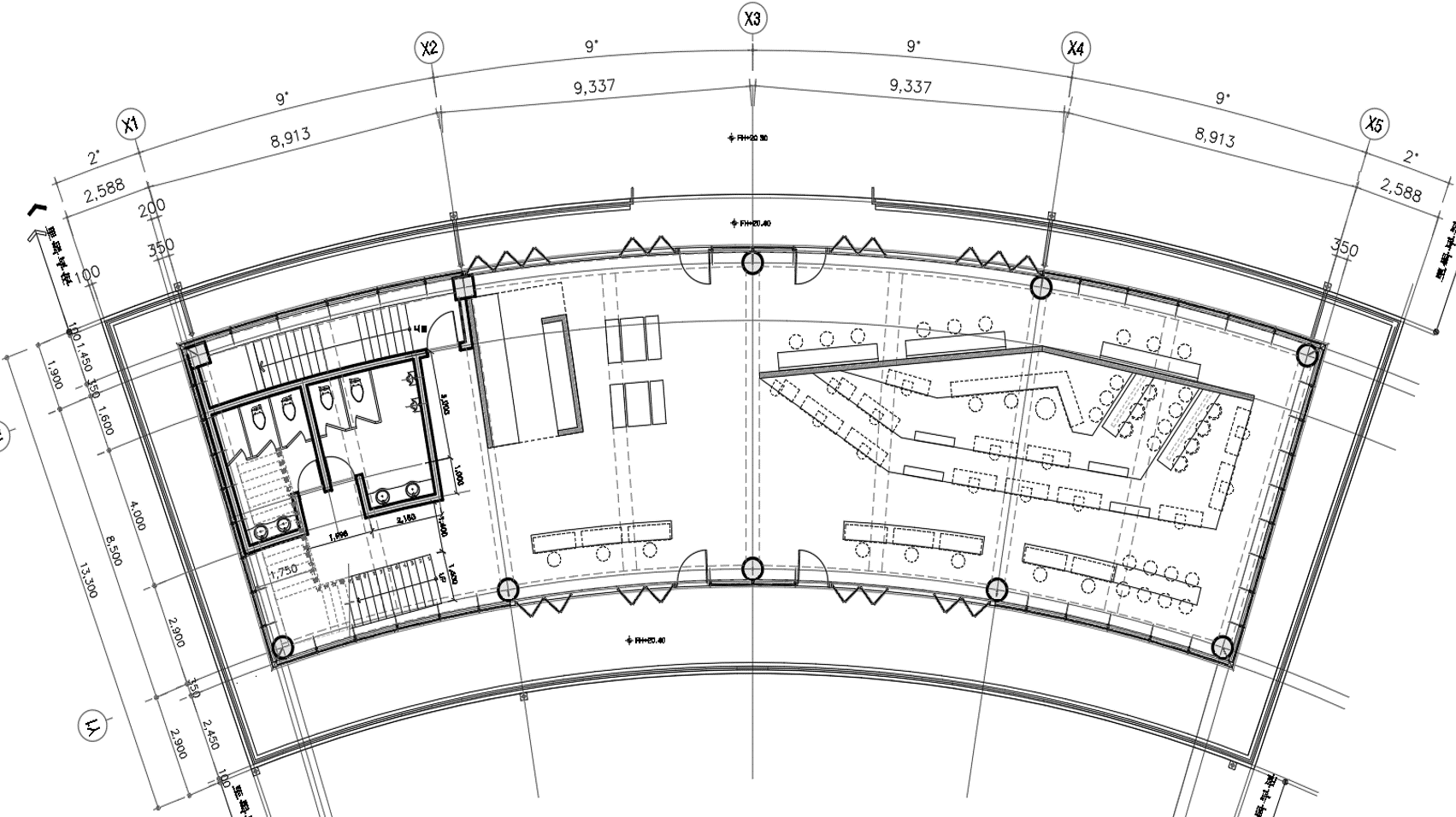
FLOOR PLAN


- TYPE A

ISO VIEW


- TYPE A

FLOOR PLAN (TYPE A)

ISO VIEW (TYPE A)
ISO VIEW (TYPE A)

PERSPECTIVE GALLERY (TYPE A)

FLOOR PLAN (TYPE B)

ISO VIEW (TYPE B)
ISO VIEW (TYPE B)

PERSPECTIVE GALLERY (TYPE B)

FLOOR PLAN


- TYPE B

ISO VIEW


- TYPE B

ROOF TOP PLAN

TYPE A. 아치형 모듈 벤치를 활용한 ‘유연한 배치 모듈’ 제안


  • 아치 형태의 모듈 벤치를 다수 배치해, 자유로운 조합이 가능한 유연한 루프탑 구성안을 제시합니다.

  • 모듈 간 배열 방식에 따라 반원형 라운지, 일렬 구간, 군집형 존 등 다양한 형태의 커뮤니티 좌석을 쉽게 구성할 수 있습니다.

  • 시각적으로 리듬감 있는 아치 실루엣을 통해 루프탑에 조형적 포인트를 부여하며, 촬영명소로서의 매력도 강화됩니다.

PERSPECTIVE (ROOF TOP-TYPE A)

TYPE B. 곡선형 벤치를 활용한 ‘흐르는 루프스케이프’ 제안


  • 루프탑 전체를 감싸듯 유기적 곡선 라인으로 벤치를 배치하여, 주변 자연 풍경을 따라 흐르는 듯한 공간감을 연출합니다.

  • 곡선의 리듬이 이용객의 동선을 자연스럽게 유도하며, 조망 방향에 따라 다양한 방향성을 갖는 시선 경험을 제공합니다.

  • 바람 흐름, 자연의 곡선, 수국 군락의 형태 등 도초의 자연 이미지를 추상적으로 반영한 배치 방식입니다.

PERSPECTIVE (ROOF TOP-TYPE B)

TYPE C. 실내 단차 매스를 확장 적용한 ‘레벨 테라스’ 제안

  • 실내와의 연속성을 강조하기 위해, 단차 매스를 루프탑에 적용하여 다양한 높이의 테라스형 좌석을 구성합니다.

  • 레벨 변화가 자연스럽게 관람 포인트와 머무름 존을 분리·연결하며, 동시에 카페 전체 아이덴티티를 외부까지 확장합니다.

  • 단차 위에 좌석을 걸쳐 두거나 데크-스텝 형식으로 구성해 루프탑만의 입체적인 조망 경험을 극대화합니다.

(주) 스튜디오파브


02 353 6317

02 335 6318

studiofab@naver.com

@designstudio_fab

4F, 53, Seongam-ro 15-gil, Mapo-gu, Seoul

서울특별시 마포구 성암로15길 53 (상암동) 4층